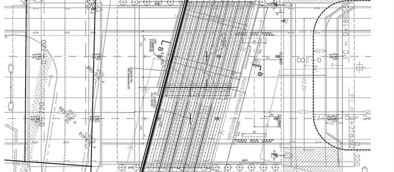
NOMBRE PROYECTO: PASO INFERIOR FF.CC. ERNESTO RIQUELME.
AREA DESARROLLO: Diseño Estructural de Puentes Ferroviarios.
CLIENTE: Argia Ingeniería Limitada.
AÑO EJECUCIÓN: INICIO: 2011 TERMINO: 2013.
UBICACIÓN: RENGO, VI REGIÓN.
DESCRIPCIÓN: Proyecto estructural bajo la línea de FFCC para el mejoramiento vial de la Calle Ernesto Riquelme. Se estructura básicamente por 2 vanos de vigas pretensadas de hormigón, apoyados en 2 estribos y una cepa estructurada por columnas circulares preexcavadas. El ancho total del tablero de la estructura vial es de 12.80 m, el cual considera 2 vías férreas, dispuestas en un ancho de 10.00 m más dos pasillos de mantenimiento de 1.4 m de ancho cada uno.

